株式会社アミックス

Amix

おかげさまで65th Anniversary

ただいま建築中

アミックスで建築中の物件写真を
ご覧いただけます

アパート等建築 アパート等建築

弊社で建築中の物件を写真でご紹介しています。オーナー様の物件が完成していく様子をどうぞご覧ください。今後も順次物件を追加する予定です。どうぞご期待ください。

世田谷区代田4丁目計画

■物件詳細

所在地
東京都世田谷区代田4丁目
構 造
在来工法(木造)
戸 数
1棟 6戸
用 途
共同住宅
間取り
1K(20.01㎡~24.61㎡)
竣 工
2020年10月下旬予定
タイプ
カラーアズHタイプ
名 称
MaKaNa
その他
ご自宅からアパートへの建て替え
満室御礼 竣工

2021/04/21

皆さま、こんにちは

プロカメラマンのお写真
やっとご紹介になります
大変遅くなり、失礼いたしました

外観、いかがでしょうか?
アプローチ~共用部の作りが
コンパクトにまとまっています!

鉄部やブロックの色味も
外観に合わせているので
全体に統一感がありますね

次は共用部のお写真のご紹介です!

  • 画像クリックで拡大

  • 画像クリックで拡大

2021/04/21

続きまして、共用部などです

天気がいいと共用廊下からは
こんなにいい景色が
見られるんですよ

続いては室内写真です

  • 画像クリックで拡大

  • 画像クリックで拡大

  • 画像クリックで拡大

2021/04/21

続いて室内写真のご紹介です。

プロカメラマンの写真は
実際に観に行くのと同じように
建物の魅力が100%で伝わりますね

おかげ様で、竣工時には
満室入居となり
嬉しい報告もできました

こちらで、MaNaKaの更新は
終わりになります!

ご愛読いただきまして
ありがとうございました

  • 画像クリックで拡大

  • 画像クリックで拡大

  • 画像クリックで拡大

2020/11/30

皆さん、こんにちは
 
本日は、施主検査のご様子を
少しご紹介いたします!
 
建物が完成してお施主様に引き渡す前に
弊社では社内検査を経て
施主検査を行って頂きます
 
流れはこんな感じです!
建物完成→社内検査→施主検査→
→手直し工事→室内クリーニング→
→建物引渡し
 
社内検査では、建築部と管理部が中心となって
隅々までチェックしていきます

例えば
「ここに小さな傷があるよ」
「少し(工事中の)汚れが残っているね」
などなど・・
 
一つ一つは小さな箇所なのですが
厳しい目でチェックしていきます!
(付箋で目印をつけていくのです。)

最終的に、手直し工事や室内クリーニングを終え
建物の引き渡しとなっていきます
 
社内検査の後、施主検査を行い
お施主様ファミリーがお越し下さいました。
 
元々一軒家だったご自宅の建て替えだったので、
お嬢様たちは
「(一軒家だった頃と)ずいぶん変わったね~!!」
「ここが私のお部屋だったところだね!」
「こうやって見ると見晴らしがいいんだね!」
と、育ったご自宅を
懐かしんでいらっしゃいました
 
皆さんとても仲が良く
とても和気あいあいとしたムードでした
 
一つ一つの設備にも感激して下さり
私たちもとても嬉しかったです
 
施主検査も無事に終わりました。
 
次回こそは、プロのカメラマンの
お写真をご紹介いたしますね!
おたのしみに
 
 

  • 画像クリックで拡大

  • 画像クリックで拡大

  • 画像クリックで拡大

2020/11/13

皆さま、こんにちは
 
すっかり秋の陽気になりましたね。
気温の寒暖差が激しくなってきたので
体調管理に気を付けつつ、
色々な秋を楽しみましょう
 
さて、
前回までは、外観・室内ともに
8割程度の進捗だったかと思いますが、
 
 
遂に
 
遂に
 
無事に完成いたしました!!
 
 
 
外壁のアクセント部分、サッシ、
鉄部(階段や手すり)をブラックに統一し、
カラーコンセプト「ホワイト×ブラック」です。
玄関ドアも重厚感のあるブラックウッド系です。
 
シックでとても素敵な仕上がりですね。
 
色の組み合わせで、本当に
たくさんのパターンが生まれます
 
 
今回は、一階のバルコニー部分を
「掃き出し窓」タイプを採用しました
 
一般的な腰高窓と比べ、開放感があり
居室スペースをより広く感じられます
 
(区によってこのタイプに
できるかどうか異なるので
注意が必要ですよ。)
 
 
続いて室内の様子をご紹介いたします。
 
 

  • 画像クリックで拡大

  • 画像クリックで拡大

  • 画像クリックで拡大

2020/11/13

続いて、室内のご紹介です。
 
オフホワイト×ダークウッド調で統一し
明るさと重厚感が出ていますね
室内のキッチン面材や床の色味など
施主様が選べるので組み合わせ次第で
雰囲気がガラリと変わりますよ
 
水回り(独立洗面台やトイレ、バスルーム)も
一人暮らし用としては十分な広さを感じます。
水回りの床材は、弊社ではクッションフロアを
使います
(居室部分の床材は、
フローリングを使います。)
 
大きな違いは・・
●クッションフロア
塩化ビニル素材のシート状で
クッション性があり、水汚れに強いのです

居室と異なり、水回りでは
主に立っていること多いですよね

そのため、クッション性があった方が
疲れにくく、また水などがはねたりこぼれても
浸透しづらいでのです

一方で、クッション性が強いため
重いもの(例えばベッドの脚)の跡も
付きやすいのが欠点です
 
そして・・
●フロアタイル
フローリング材のようにピースに分かれています。

クッションフロアと比べると多少水に弱いですが
近年のものは水に強く
コーティングされています
そして、傷に強く跡が付きづらいので
ベッドの脚やテーブルの脚にも強いのです。
 
 
適材適所に素材が使われているのですね
 
次回は、プロのカメラマンが撮影した写真をご紹介致します!
お楽しみに!!
 

  • 画像クリックで拡大

  • 画像クリックで拡大

  • 画像クリックで拡大

2020/09/16

みなさん、こんにちは。
今回の記事も2本立てです!

いつの間にか酷暑が過ぎ去り
過ごしやすい気温になってまいりましたね。

季節の変わり目なので、
体調にお気をつけください
 
さて先日、いよいよ
養生シート&足場が外れ
建物の外観が
よく分かるようになってきました。

完成に着々と近づいています
 
最寄駅の「東松原駅」から
歩くこと、僅か2分!
(たった2分ですよ
 
ピカピカの建物が見えます。
 
階段に手すりが設置され
鉄部にも色がつきました。

階段の床部分は、これから
歩行シートを取り付けます
 
こちらの建物の外観イメージは
 オフホワイト×ブラック です
 
飽きがこないですし、
とてもシックなデザインですね
男性にも女性にも
好まれるデザインだと思います
 
ブロック塀やフェンスといった外構は
最後に仕上げます。

室内の設備(キッチンやユニットバスなど)の
搬入があったり、職人さんの出入りもあり、
作業をしやすくするためです
 
 次の記事に続きます!

  • 画像クリックで拡大

  • 画像クリックで拡大

  • 画像クリックで拡大

2020/09/16

続いてお部屋を覗いてみましょう
 
クロスが貼られ、前回の殺風景な雰囲気から
変化を感じますね

巾木(はばき)も取り付けられているので
間もなく扉の設置段階だ
ということがうかがえます
 
キッチンは本体が取り付けられる前です
ユニットバスは設置済みですね
 
こうやってどんどん完成に向けて進んでいきます。
 
ここで告知です

内覧会を開催いたします!

2020年10月24日(土)・25日(日)
開催時間:10:00~16:00
住  所:東京都世田谷区代田4-19-10
京王井の頭線「東松原駅」徒歩2分

新型コロナウイルス感染症の対策のため
見学時マスクの着用と
入口での手の消毒のお願い。
居室では換気のため窓を開けて
開催させていただきます。

より詳しい内容の問い合わせは
下記のフォームより
お問い合わせください
お問い合わせフォーム


  • 画像クリックで拡大

  • 画像クリックで拡大

  • 画像クリックで拡大

2020/09/04

みなさん、こんにちは。
少しご無沙汰しておりますが
お元気でしょうか
 
お陰様で工事も
順調に進んでおり、
室内が着々と完成に
向かっています
 
前回記事は骨組みされている様子を
お伝えしました。

その後は、このように
壁・室内ボードが貼り付けられ
建物の全体像がよく分かる姿になります
 
少し室内の様子を見てみましょう!
クロスを貼る前のお部屋の様子です。
エアコンなどの設備も設置前なので、
とても殺風景ですね。
これからの仕上がりが楽しみです
 
天井や壁に貼るクロスですが
クロスを貼る箇所に合わせて
クロスロールから切断するのは
なんと建築現場で、なのです

このようにクロスカットソーと
いわれる切断機を持ち込み
長さや形状に合わせて
カットしていきます。
 
「クロスの貼り方で職人さんの腕が分かる」
と言いますが、単に貼り方だけでなく、
下地となるボードの仕上げも
出来栄えに大きく影響するのです

以前の記事でもお伝えした通り
基礎・下地はとても重要ですね。
 
ちなみに、戸建住宅では
特にリビングやダイニングの
クロス貼りに気を遣うそうです

お住まいの方々以外にも
来客者にも目が入る箇所だからです。

次の記事に続きます


  • 画像クリックで拡大

  • 画像クリックで拡大

  • 画像クリックで拡大

2020/09/04

上の記事の続きです!

共用階段も見てみましょう
まだ手すり設置も鉄部も塗る前の状態です。
階段も鉄部と同じく外観に併せるので
今後が楽しみですね!
 
ちなみに、
折り畳み自転車が
置かれているのですが

住宅街にある現場などでは
しばしば見かける光景です

これは、現場の方々が
工事期間中借りている
駐車場からの移動用に
使っているのです

マンションや
土地の広い現場ですと
車輌を停めたまま工事が出来るのですが
多くの現場では
そのようなことが出来ません。
 
今回は、世田谷区の駅から
大変近い現場なので
近くに駐車場を探すのも大変です

そのため、
借りることができた駐車場から
自転車を使えば、
時間も短縮できて便利なのです

ちなみに、よく見ると
弊社アミックスのシールが
貼られています
 
次回は、
いよいよこの養生シートが
外れた後の様子を
お伝えいたします!

外壁の様子が
よく分かると思いますので
乞うご期待です

 

  • 画像クリックで拡大

  • 画像クリックで拡大

2020/08/01

みなさん、こんにちは。
 
コロナの感染者数が増えてきましたが
幸いにもどこの現場でも影響がなく、
無事に進んでいます。
引き続き用心し、進めてまいります
 
今回の状況下なので、オンラインを活用した
取り組みを沢山進めています
オンラインでのご相談窓口やオンラインでの
内覧会、そして、完成物件をご紹介する
ハンドメイドの動画も作成中です
お問い合わせフォーム(オンライン面談申込はこちら)
 
こちらの物件も、完成しましたら
ご紹介ムービーを作成して
アミックスYouTubeチャンネルに
投稿予定ですので、乞うご期待です
 
さて、現在の進捗をご紹介いたします。
※今回も記事が2つに分かれます!
 
養生シート越しにも進捗が確認できますね。
 
シートの先に進むと・・・
もう窓枠と窓も設置済みです

こちらの窓、工夫が詰まっておりまして…
室内から窓を見ますと
このように「すりガラス」になっており
カーテンを開けていても道路側から室内が
丸見えになることを防げるのです

同時に、お向かいにお住まいの方々にも
安心して頂けます。
お互いのプライバシーが守られますね

下の記事に続きます

  • 画像クリックで拡大

  • 画像クリックで拡大

  • 画像クリックで拡大

2020/08/01

前回記事「養生シートからの…」の続きです。

さて、続いて
もう少し養生シートの内側を見てみましょう!

骨組みされていますね。
これを構造体といいます
 
一枚目の写真をご覧ください。
この骨組みに斜めにばってんのように
組まれた木材がありますね。

これを「筋交い(すじかい)」といい
建物の強度を増すためのものです。
補強材とも呼ばれています
 
二枚目の写真では、
室内の間柱(まばしら)の様子が分かります。
間柱とは、大きな柱の
「あいだにある柱」のことです。

大きな主要な柱との違いは、
主要な柱は建物の構造を
支えるためのものですが、
間柱は壁を取り付けるためのものなのです
 
三枚目の写真では、
玄関ドアの取り付けが完了していますね。

このように完成直前まで、
扉には段ボールで養生を行うことで
工事の中に傷やほこりがつかないように
保護しているのです
 
玄関ドアと玄関ドアの間に設置されている
白の扉は、ガス機器の扉です。
最近の住宅では、このように
埋め込み式となっています。

以前のアパートでは、ガス機器は外側に
出っ張って設置されいたのですが
今では埋め込み式なので見ためもスッキリ
雨にもさらされないようになっているのです
 
様々な部分が、改良されているのですね。
近い未来は
どのようになっているのでしょうか…
ワクワクドキドキしてしまいます
 
次回もお楽しみに!

  • 画像クリックで拡大

  • 画像クリックで拡大

  • 画像クリックで拡大

2020/07/22

みなさん、こんにちは。
今年の梅雨は長いようですね

各現場の進捗が気になっておりますが
お陰様で無事に進んでおります!
 
現在の進捗はというと・・
 
躯体搬入(木材や階段部分尾鉄骨柱など)を終え、このようにどんどんと組み立てております。
建築用語では、「建て方」(たてかた)といいます
 
建築現場では資材の搬入を工程に
合わせて行います。
都心部では特に、限られた敷地ですし、近隣との距離もとても近いですしね。
最初から資材を置いておくことができません
 
階段と共用廊下の骨組みが、
ご覧の通り鉄骨となっています。
木造アパートでもこのように箇所に応じて
鉄骨を使用しているのです
そして弊社では、メッキ加工を施しているため、腐食しづらいのも強みです!

ブログの途中ですが、ご案内です!
建築途中のブログをご覧の皆様

ご相談したくても外出が難しい。
自宅で気軽に相談したい。
そんな方々にも朗報です!
ZOOMでオンライン相談受付はじまりました!
お問い合わせフォーム
ぜひご検討ください!
 
次回もお楽しみに★

  • 画像クリックで拡大

  • 画像クリックで拡大

  • 画像クリックで拡大

2020/07/15

みなさん、こんにちは。
本日は、「土台敷き」という工程をご紹介いたします。
 
今回は、2回に分けてのご紹介です。
写真掲載が1度に3枚までが上限なので
分割になってしまいました
 
まずは、全体の写真からご覧ください。
基礎コンクリートの上に木板が設置されていますね。
 
そこまでの工程はというと・・
大きく分けて3段階あります
 
①基礎パッキンの取付け
緩衝材と土台の湿度を逃がす役目になります。
コンクリート基礎に直接木板を設置してしまうと、湿度の多い日本ではカビや腐食の原因になってしまうのです。
 
この時期の湿度対策を建築の段階でどのように行っているのか不思議だったのですが、
この工程を知り、納得したのを覚えています
 
ちなみに、築年の経ったアパートの各お部屋を比較したことがあります。
室内で洗濯物を干していたと思われるお部屋と
換気をまめに行っていたと思われるお部屋とでは、残念ながら室内の傷みの度合いに差が出ているのが分かります
 
これは木造集合住宅に限ったことではないのですが、室内に換気扇がある場合は常時オンにするのがとってもお勧めです
 
2段階目、3段階目は次の記事でご紹介いたします。

  • 画像クリックで拡大

  • 画像クリックで拡大

2020/07/15

前回記事「土台敷き」の続きです。
 
②木材をアンカーボルトで固定
表面から見るとこのアンカーボルトの深さが
分かりませんが、イラストのように
基礎コンクリートまで到達し、
土台を固定する大事な役目をになっています
 
③床束(ゆかづか)を造る
基礎のない部分の床を支える役目になります。
従来は木材の床束だったようですが
湿度の影響を受けやすので、現在では
鋼製のもの(鋼製束)を使用しているのです。
これで腐食の心配もありません
 
以上、「土台敷き」のご紹介でした。
 
次回もお楽しみに!

  • 画像クリックで拡大

  • 画像クリックで拡大

  • 画像クリックで拡大

2020/06/30

こんにちは

梅雨で雨の日が多くなりましたね
この時期は、作業工程に滞りがないか気になるところですが、梅雨の時期を織り込んでの工程なので、お陰様で順調に進んでいます。
 
さて、本日は
完成イメージパースのご紹介です!
 
元々、施主様のご希望でホワイト&ブラックの
外観イメージがありますので、それに沿っての
イメージ作りを行いました
 
玄関扉も重厚感のある木カラーをお選びになり、全体的にシックな仕上がりになると思います。
完成するのが楽しみですね。
 
実際のサイディングと、こうやって画面で見る
色味には多少のズレが出てきてしまうものです。

今回は近隣に弊社建築のアパートがあり、
そのアパートもこのカラーのサイディングを
採用していたので施主様は実際にご覧になられ、
イメージを把握されています
 
弊社の場合、実際にアパートをご覧になられて、建築をやご購入される方が多いです。
 
「いつも見かけて、
   素敵な外観が気になっていたのよ。」
「何年も経つのに、きれいなままだね。」
 
と仰って下さることが多く、本当に嬉しいです
 
近隣の弊社アパートの室内もタイミングが良く、見ることができました!
実際に見ることによって、床の色やドアの
デザイン選びの決め手になりますね。
 
現在、弊社では、オンラインでの内覧会準備を進めているところです。

完成直後のアパートの外観や室内を
オンラインで見れるようになれば、
遠方のお客様に限らず様々なお客様にとっても
私たち担当にとっても時間の融通が利き、大変便利ですね
 
また次回もよろしくお願いします。

  • 画像クリックで拡大

  • 画像クリックで拡大

  • 画像クリックで拡大

2020/06/12

こんにちは
梅雨に入り、じめじめした
暑い気温が続きますね。
読んでくださっている皆さま、体調など
お変わりはないでしょうか

この炎天下の中作業を行っている現場の職人さんたちには本当に頭が下がります
近頃では、作業着の内側に
小型ファンが付いたものが多く発売されていて、とても人気のようで現場の職人さんや道路誘導員の方々など、よく見ると小型ファンが付いた作業着姿をたくさん見かけるようになりました。

年々暑さを増す猛暑に対応した作業着の開発が
どんどん進んでいて、驚いています!

住宅の性能も然り、
サイディングの性能も改良が進んでおり、
ここ数年のものは雨で汚れが落ちる加工が施されているのです!
雨が降れば、外観がきれいに保たれるなんて
画期的ですね!

さて、雨天が続く直前に無事脱型が行えました。
前回は型枠をした状態をお伝えしましたが、
流したコンクリートが予定通りの期間で固まり
2枚目の写真のような状態になっています。

併せて、配管工事を行い、
水道管を埋設する工事を行っていきます

普段、天井や壁、床の内部が
どのようになっているのか
あまり想像しなかったのですが

こうやって順を追ってみていると、
内部の造りがよく分かり、興味深いです。

作業工程では、梅雨のこの時期も見込んで予定を立てているのですが、おかげさまで無事、工程通り進んでおります。

次回は出来上がるアパートのイメージパースを
ご紹介いたします
お楽しみに!

  • 画像クリックで拡大

  • 画像クリックで拡大

  • 画像クリックで拡大

2020/06/05

地鎮祭も無事に執り行われ、
基礎工事に入りました
地震の多い日本、厳しい建築基準がたくさんあります。
 
やはり、土台を築く基礎工事はとても重要なので
基礎完成までにたくさん工程があります。
料理でも下ごしらえ、学習やスポーツでも基礎をおろそかにできないですよね
 
正確な位置に建物を建築するため、位置や高さなどを決める「遣り方(やりかた)」、
地盤面の余分な起伏を決まった高さに削りとる
「鋤取り(すきとり)」など…
様々な工程を経てコンクリートを流し、べた基礎を作っています。

コンクリートが底板となり、建物の全体の重量を面で支える形になります
鉄骨アンカーと呼ばれるコンクリートに埋め込み使うボルトも使用し、丈夫な基礎を作っています。
また、コンクリートで地面を覆うことによって、地面からの湿気や白蟻の浸入を防ぐ役目にもなっているのです
 
次に2枚目の写真のように鉄筋を組んだら(配筋といいます)、型枠でこの鉄筋を囲み、
コンクリートを流して固まるのを数日間待ちます

ちなみに、かなり以前の現場では、
この型枠は木製だったようですが、
現在はこのような金属製となっており、
繰り返し使えるものになっているようです
(土の汚れがたくさん付いているように
見えるのは、そのためなのですね。)
 
この型枠が外れるのは、来週の予定です。
また様子をお伝えしますね。

  • 画像クリックで拡大

  • 画像クリックで拡大

  • 画像クリックで拡大

2020/05/22

先日、地鎮祭が無事に執り行われました。

雨予報だったのですが、天気がもち
ちょうどよい気候でした。
日頃の行いでしょうか

弊社では営業担当、建築担当と
工事に携わる社員が参加させて
頂くようにしています

地鎮祭は皆さまもご存じの通り
土地の守護神を祀り、
土地の利用させてもらう
許しを得る儀式です

工事の無事を祈るので
安全祈願祭とも言われていますよね。

最近では、この儀式をもっと簡素にしたり
行わない場合もあるようです。

しかし、弊社ではこうやって本来の地鎮祭を執り行うようにしております。
特に今回の場合は、お施主様のご自宅の跡地
としてのアパート建築なので、工事の安全と
今後の繁栄も一緒に祈願させていただきました

次回は、工事着工の様子をお届けいたします。

  • 画像クリックで拡大

  • 画像クリックで拡大

  • 画像クリックで拡大

2020/05/12

 
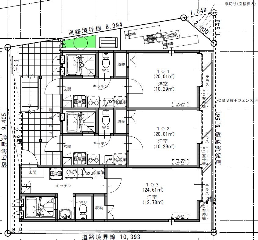
ここで、完成予定の間取りを少しご紹介します
これは敷地と1階の間取り図です。

1Kタイプ×6室のアパートで
長方形の居室に大きめ収納がついたお部屋です。

使い勝手の良いお部屋は永く入居いただけたり
お部屋を選んでいただく決め手になるので
ご提案する間取りは何度も打ち合わせをしています


敷地は2方向に接する角地なので
集合住宅に必要な2方向の避難経路が確保しやすく敷地を有効に使えることができました。
  
世田谷区では条例に「世田谷区みどり33」を掲げていて、みどり率33%を目指しています
 
その為、敷地の一定割合で植栽が必要になります。
その条件を満たしつつ、なるべくお部屋の面積も広くし、さらに空いたスペースも有効に使えるように・・
と設計士が頭を捻りながら工夫していきます
 
やや台形型の敷地を利用して
道路側の空いたスペースに必要な
植栽、ゴミストッカー。
デットスペースに駐輪場も設けることが出来ました
 
奥のお部屋は、他のお部屋よりも4㎡多く広げられ、独立洗面台を設置することでお部屋のバリエーションを増やしています!
 
次回の更新は地鎮祭の様子をお届けいたします!

  • 画像クリックで拡大

  • 画像クリックで拡大

2020/05/11

ご自宅の解体作業に入りました

大きい植栽が多かったので
まず抜根作業から始め
土地を平らに整地し
元々あった勾配も直します。

日本の特に都心部は隣地との距離が近く
ブロック塀などが境界をまたがっていることも
多いので解体作業には細心の注意が必要です

お陰様で今回も無事に終えることが出来ました
ありがとうございます!
 

整地後は「遣り方(やりかた)」を行います。
建築用語なのですが、普段の生活の中ではあまり馴染みがないかもしれませんね。
正確に建物の位置を決めるために行う作業です

杭を打ち、貫板と呼ばれる木板を建物をぐるりと
囲むように設置し、そこに隣地境界線や道路境界線から正確に測定し建物の外壁線を記します。

お裁縫で言うと生地に型紙(パターン)を写す
作業に当たるでしょうか

精度を上げるためのとても大事な作業です!
次回の更新は間取りをご紹介します!

  • 画像クリックで拡大

  • 画像クリックで拡大

  • 画像クリックで拡大

2020/04/30

こんにちは

新しく掲載がはじまりますこちらは
ご自宅からアパートへ建替えいただくことになりました!

京王線「東松原」駅から徒歩4分程の
閑静な住宅街にございます。

学生さんや若い社会人さんが集まる人気エリアなので単身者向けのアパート建築に向いていますね。
 
施主様に、弊社に依頼する決め手を伺いました!
「近隣の弊社建築アパートを気に入ったから…」
とても嬉しかったです!!

どの現場も一生懸命に仕上げるのですが
このようなお言葉を頂けるとより気合いが入るものです。

ご自宅として思い出がたくさんある場所だと思います。
入居者の方も良い気持ちで永く住んでいただけるようなアパートを建てさせていただきますね

どうぞよろしくお願いします。

次回、ご自宅解体後の様子や間取りなどのご紹介をさせていただきます!
どのように進んでいくのか楽しみですね。
是非、ご覧ください。

  • 画像クリックで拡大

  • 画像クリックで拡大

top
top